Conception d'un jardin à Bourgbarré (35)

Conception d'un jardin à Bourgbarré (35)

Ce projet réalisé sur la commune de Bourgbarré a permis de transformer un espace extérieur en un véritable lieu de détente et de convivialité. Chaque zone a été pensée pour offrir à la fois fonctionnalité, esthétique et harmonie avec le paysage environnant.

 

Stationnement et entrée

  • Espace de stationnement en enrobé, délimité par des chainettes de pavés, pour une finition soignée et une gestion optimale des eaux pluviales.
  • Entrée de l'habitation : un dallage en dalles de grès cérame qui mène à la porte d’entrée, agrémenté de végétaux de part et d’autre pour ajouter de la verdure et de la fraîcheur à l’accueil.

 

Terrain de pétanque et cuisine d’été

  • Terrain de pétanque aménagé sur le côté, agrémenté de végétalisation pour un aspect naturel et agréable tout en étant un véritable espace de loisirs.
  • Cuisine d’été en bois pour profiter des soirées estivales en extérieur, un espace convivial et pratique, adapté à la préparation de repas en plein air.

 

Espace piscine et terrasse bois

  • Piscine sur le côté Sud du jardin, entourée d’un pourtour en dalles de grès cérame, pour un aspect moderne et épuré.
  • Petite terrasse en bois, parfaite pour se détendre et profiter du soleil ou de moments conviviaux en extérieur.

 

Muret d’assise et couverture en ardoise

  • Muret en parement pierre à l’extérieur de la terrasse, servant à la fois de séparation et de coin assise pour des moments de détente. La couvertine en ardoise apporte une touche élégante et naturelle à l'ensemble.

 

Coin potager et local technique

  • Coin potager aménagé pour cultiver des plantes et légumes en toute tranquillité.
  • Local technique de la piscine, équipé d’une douche solaire pour profiter du jardin et de la piscine tout en ayant un accès pratique et fonctionnel à l'extérieur.

 

Éclairage

Un éclairage discret a été installé sur tout l'aménagement pour prolonger les soirées d'été, mettant en valeur les différents espaces tout en assurant une ambiance agréable.

Ce projet à Bourgbarré combine à la fois le confort d’un jardin moderne et les besoins fonctionnels d’une maison contemporaine, avec des aménagements pensés pour chaque espace afin d'offrir une expérience agréable en extérieur tout au long de l'année.

Piscine

Piscine de nuit

Entrée de maison

Entrée de maison de nuit

Terrasse mixte bois grès cérame

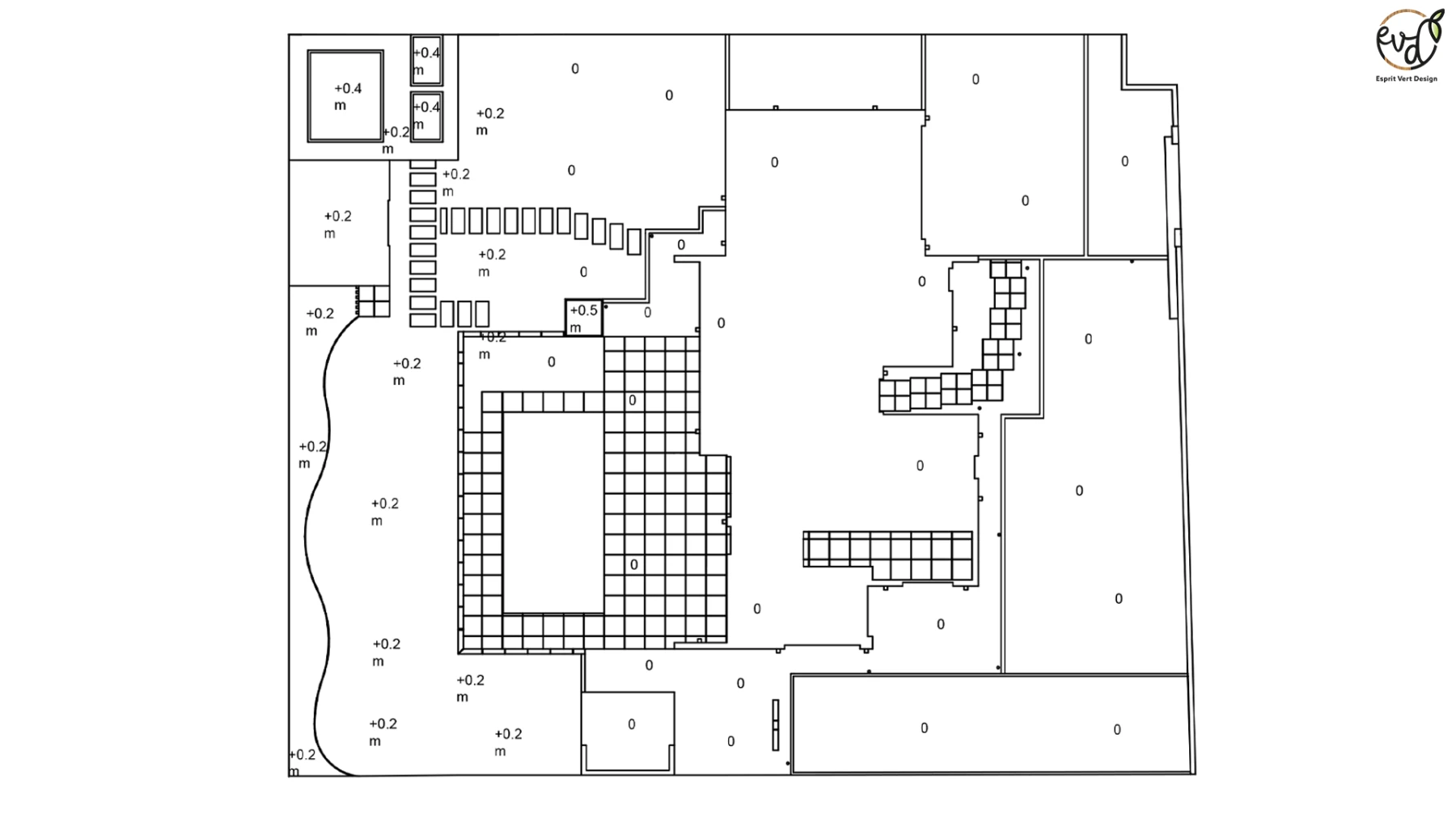
Plan de masse altimétrique

Terrain de pétanque

Cuisine d'été de nuit

Plan de plantation

Jardinière en ardoise

Contact au client

Devis sur-mesure

Appel téléphonique

Envoi de plan 3D

Retour client

Validation du projet 3D

Réalisation des plans

Remise du projet

Quelques exemples de nos projets
#Espritvertdesign
Contact
Nom et prénom*
E-mail*
Téléphone*
Adresse
Fichiers
Votre message*
Téléphone
Un futur projet ?
02 97 72 97 51
horaires

Du lundi au vendredi

de 8h30 à 18h

 

Et le samedi 

de 9h à 12h

Adresse
Zone du Bois Vert
56800 - Ploërmel
Suivez-nous !