Conception d'un havre de verdure en plein cœur de Ploërmel (56)

Conception d'un havre de verdure en plein cœur de Ploërmel (56)

Au cœur de Ploërmel, ce superbe jardin naturel a été conçu autour d’une maison datant des années 1800, alliant parfaitement le charme de l’ancien au confort moderne. Le défi ? Créer un espace naturel, intégrer un spa, et planter de grands arbres pour offrir un cadre de vie exceptionnel. Et le défi est relevé avec brio !

 

Un stationnement élégant et fonctionnel

L’accès à la maison se fait par un espace de stationnement en pavés granit, qui allie robustesse et esthétique. Ce revêtement naturel offre un aspect chaleureux et intemporel, en parfaite harmonie avec l’environnement de la maison.

 

Une terrasse en pierre et un coin spa

La terrasse, réalisée en pierre 4 formats, offre un espace de détente idéal. Surplombant cette terrasse, un coin spa a été créé, avec des murets en pierre végétalisée sur le pourtour, apportant une touche de verdure et de sérénité à l’espace.

 

Végétalisation et grands arbres

Plus de 2000 m² de terrain ont été végétalisés avec soin, intégrant de grands arbres qui apportent à la fois de l’ombre et un véritable caractère naturel au jardin. Ces plantations majestueuses viennent enrichir le paysage, créant un havre de paix et de fraîcheur en plein cœur de la ville.

 

Transformez votre extérieur en un havre de verdure !
Contactez-nous pour donner vie à votre projet de jardin, qu’il soit naturel, contemporain ou sur terrain en pente. 🌿

Accès à la terrasse en pavés granit gris

Eclairage des abords des allées carrossable

Création de plusieurs espaces de terrasse

Vue d'ensemble du jardin de nuit

Plan de plantation du fond du jardin

Terrasse spa de nuit

Massif fleurie

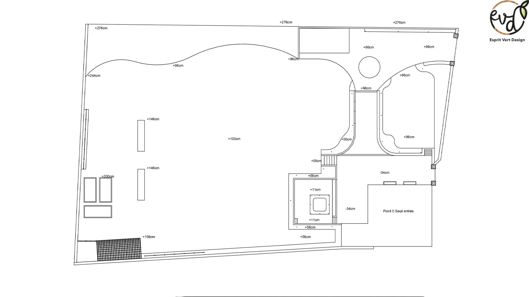
Plan de masse altimétrique

Vue globale sur l'entrée de la maison

Eclairage de l'accès au jardin

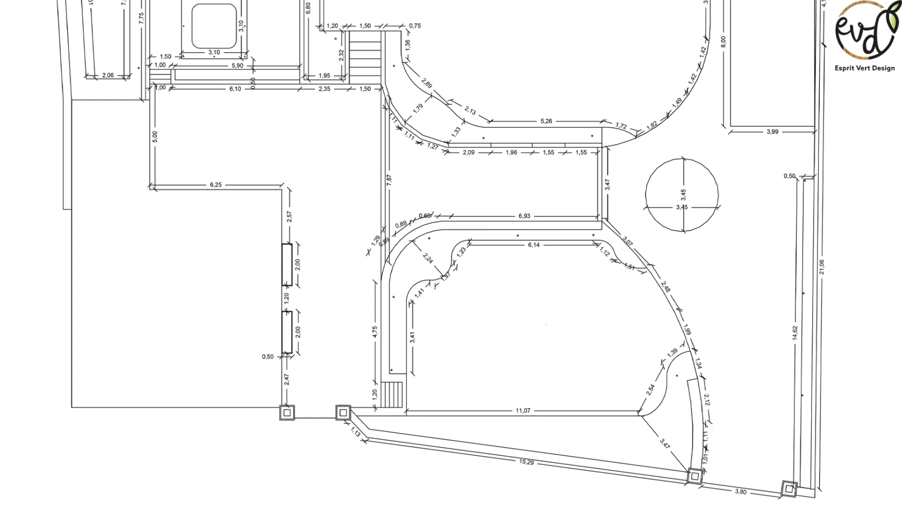
Plan de masse coté

Escalier d'accès au jardin

Plan de masse de nuit

Plan de plantation de l'entrée de la maison

Pavage en granit gris

Mise en valeur d'un dallage en pierre naturelle opus 4

Carport aluminium avec espace de stockage

Contact au client

Devis sur-mesure

Appel téléphonique

Envoi de plan 3D

Retour client

Validation du projet 3D

Réalisation des plans

Remise du projet

Quelques exemples de nos projets
#Espritvertdesign
Contact
Nom et prénom*
E-mail*
Téléphone*
Adresse
Fichiers
Votre message*
Téléphone
Un futur projet ?
02 97 72 97 51
horaires

Du lundi au vendredi

de 8h30 à 18h

 

Et le samedi 

de 9h à 12h

Adresse
Zone du Bois Vert
56800 - Ploërmel
Suivez-nous !