Conception d’une villa à Beignon (56)

Conception d’une villa à Beignon (56)

Ce projet de conception d'une villa à Beignon a été réalisé dans le but de créer des espaces de vie fonctionnels et esthétiques, tout en respectant les besoins de sécurité et d'intimité des propriétaires.

 

Sécurisation et aménagements extérieurs

  • Portail coulissant en aluminium installé à l’entrée de la propriété pour assurer une sécurité optimale tout en apportant une touche moderne et élégante.
  • Parking en enrobé avec des bandes de pavage pour casser la masse, apportant un côté structuré et harmonieux à l'entrée.

 

Entrée et accès à la villa

  • L'entrée en pierre opus 4 formats, sublimée par des végétaux, guide de manière élégante les visiteurs vers la maison, créant une atmosphère accueillante dès l'arrivée.

 

Espaces de vie extérieurs

  • À l'arrière de la villa, plusieurs espaces de vie ont été aménagés pour profiter au maximum des extérieurs :
    • Coin détente en opus 4 formats, idéal pour se relaxer ou recevoir des invités.
    • Une grande terrasse en bois entourant la piscine et le spa, créant un espace de bien-être.
    • Une terrasse couverte en pierre a été prévue pour le coin repas, permettant de profiter des repas en extérieur, tout en étant protégé des intempéries.

 

Ajouts fonctionnels et pratiques

  • Pool-house aménagé en coin salon, parfait pour se détendre près de la piscine.
  • Cuisine d'été avec bar, offrant un espace convivial pour les repas en plein air.
  • Garage avec filtration de la piscine, permettant de gérer efficacement l'entretien de la piscine tout en optimisant l'espace.

 

Clôture et végétalisation

  • L'ensemble de la propriété est clôturé et végétalisé, assurant à la fois intimité et esthétique. L’avant du terrain est particulièrement soigné, avec des plantations apportant de la couleur et de la verdure tout au long de l'année.

 

Ce projet à Beignon a permis de créer une villa moderne et fonctionnelle, avec des espaces extérieurs bien pensés pour la détente et le divertissement. La combinaison de matériaux de qualité, de végétation et d’aménagements soignés offre une atmosphère chaleureuse et harmonieuse.

Entrée de maison

Eclairage de l'ensemble de l'aménagement

Spa et cuisine déité

Plan de masse texturé

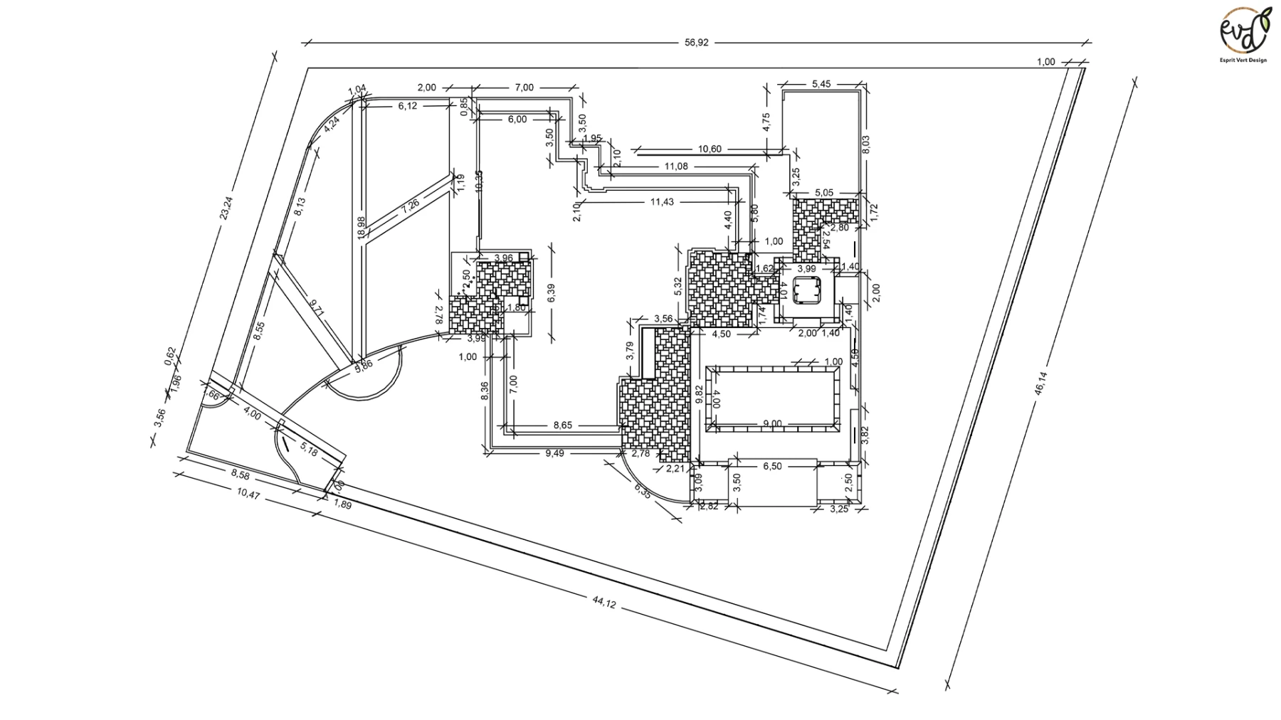
Plan de masse cotations

Plan de masse de nuit

Terrasse bois autour du spa

Entrée de la maison de nuit

Aménagement autour de la piscine

Plan de plantation

Plan de plantation

Plan de masse annoté

Entrée de propriété

Cuisine d'été de nuit

Plan de plantation

Piscine avec terrasse bois

Terrasse bois de nuit

Contact au client

Devis sur-mesure

Appel téléphonique

Envoi de plan 3D

Retour client

Validation du projet 3D

Réalisation des plans

Remise du projet

Quelques exemples de nos projets
#Espritvertdesign
Contact
Nom et prénom*
E-mail*
Téléphone*
Adresse
Fichiers
Votre message*
Téléphone
Un futur projet ?
02 97 72 97 51
horaires

Du lundi au vendredi

de 8h30 à 18h

 

Et le samedi 

de 9h à 12h

Adresse
Zone du Bois Vert
56800 - Ploërmel
Suivez-nous !